(и еще домик на въезде за £1,6 млн)
Татьяна Ким, супруга совладельца группы Kaspi и богатейшего казахстанца Вячеслава Кима, в марте 2021 года купила гигантское поместье в деревне Черт (Churt) в графстве Суррей на юго-востоке Англии. Это приобретение обошлось ей в £20 млн, а сделка по продаже усадьбы Wishanger Manor стала самой крупной в этом регионе за весь 2021 год. Вдобавок к имению, Татьяна Ким также приобрела домик для кучеров за £1,6 млн. Вступив в права владелицы, она начала активно перестраивать поместье, благодаря чему у нас появилась возможность взглянуть на поэтажные планы этого особняка, а также оценить приоритеты казахстанской предпринимательницы.

Поместье Уишангер очень древнее — его первое упоминание встречается в документах 1167 года. Эта территория принадлежала аббатству Уэверли, и первую сотню лет этой территорией владели цистерианские монахи. Уже в то время стало понятно, что местные земли не очень подходят для земледелия, и на вересковых пустошах стали пасти овец. На речках и ручьях были вырыты пруды для разведения рыбы — они существуют и поныне. С момента основания поместье сменило множество владельцев, пока его не приобрела Татьяна Ким.
Это настоящая английская глубинка, вдалеке от шумных мегаполисов — но при этом относительно удобное место, чтобы быстро добраться из аэропорта Хитроу (56 км) или до центра Лондона (80 км). Поместье такой площади — более 16 гектаров, включающее основное здание, дом для охраны, теннисный корт, открытый бассейн, пруд и несколько участков леса — в ближнем пригороде британской столицы скорее всего недоступная роскошь даже для семейства Кимов. И даже не потому, что это дорого, таких усадеб просто нет на рынке.

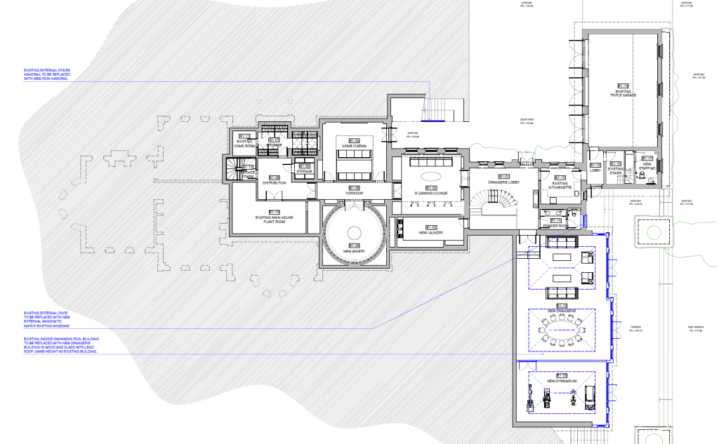
Купив поместье, Татьяна Ким тут же занялась планами по его переустройству. «Выход к морю» нашел в публичном доступе несколько запросов на частичную реконструкцию усадьбы. Первый план ремонта предусматривал снос одного из помещений — крытого бассейна — и обустройство на его месте оранжереи и тренажерного зала. К заявке прилагались поэтажные планы особняка.
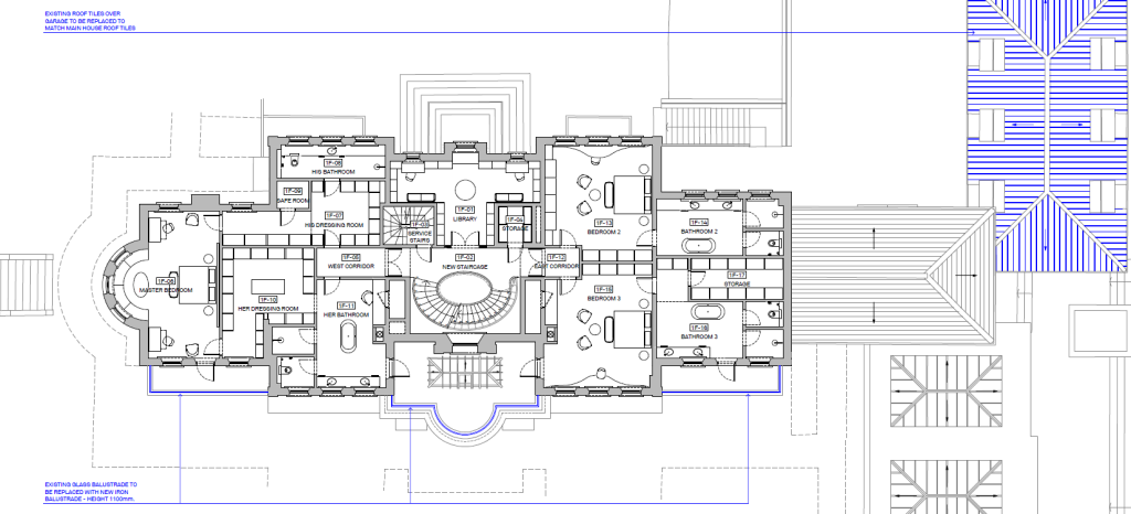
Поскольку дом построен на склоне, фактически в нем четыре этажа — нижний постепенно переходит в подвальные и технические помещения.

Кроме оранжереи и тренажерного зала на месте крытого бассейна Татьяна Ким также запланировала следующие изменения: комната для снукера превратилась в домашний кинотеатр, спортзал — в винотеку, раздевалка — в прачечную, а к гаражу на три автомобиля добавился туалет для прислуги. Но это не все изменения. Стеклянное ограждение балконов и переходов заменялось на кованные балюстрады, перекрывалась крыша над пристройкой с гаражом и гостевыми спальнями, чтобы соответствовать единому стилю постройки.

А вот план первого (технически — третьего) этажа. Видно главную спальню с полукруглым эркером на западную сторону, с отдельными ванными и гардеробными комнатами для супругов. На этом же этаже находятся еще две спальни со своими ванными, библиотека и две лестницы — господская (планировалась ее реконструкция) и для прислуги.

На нулевом этаже находятся комнаты для рисования, две комнаты для учебы, две комнаты для ужинов, помещение для сада, место для семейного досуга, а в пристрое — две гостевых спальни. На втором, самом верхнем этаже — еще две спальни и технические помещения.
Все эти планы по переустройству были опубликованы в 2021 году, но и год спустя Татьяна Ким и ее представители не получили официального разрешения начать работы: местным чиновникам не понравилось, как был заполнен бланк по «сохранению биоразнообразия» (отразится ли строительство на популяции летучих мышей).
Но куда больший протест у чиновников вызвала другая реконструкция. Вот скриншот апелляции на предписание в четырехмесячный срок снести забор вдоль южной границы поместья:

В ответе на апелляцию инспектор написал, что деревянный забор высотой 2,5 метра «из-за своей высоты и длины создает неоправданное ощущение замкнутости», «представляет собой форму городской застройки» и «диссонирует с окружающей природой». На доводы владелицы о том, что забор повышает ее безопасность, инспектор ответил, что не было доказано, что это единственная альтернатива повышения безопасности, и таким образом негативный эффект забора оправдан.

В итоге инспектор частично согласился с апелляцией Татьяны Ким и смягчил требования: вместо полного сноса забора он предписал уменьшить его высоту до одного метра.

В 2025 году Татьяна Ким вновь попросила местные власти о согласовании реконструкции: на этот раз речь также шла о безопасности ее владений. Сборник прилагаемых документов в общем доступе отсутствует, но судя по повестке дня совета округа Хэдли, речь шла о сооружении четырех хозяйственных построек к уже существующему дому для охраны. Совет возражать не стал.

Через год после основной покупки в дополнение к особняку Татьяна Ким также приобрела небольшой дом прямо на въезде в усадьбу. Согласно выписке из британского кадастра, он носит название «Коттедж кучеров», и видимо раньше входил в имение. Стоимость этого коттеджа — £1,6 млн.

Татьяна Ким — супруга Вячеслава Кима, богатейшего бизнесмена Казахстана по версии Forbes. Этому статусу он обязан прежде всего за счет доли в казахстанском финтехе Kaspi.kz. Также Ким является единственным акционером АО «Алсеко» и ТОО «Астана-ЕРЦ» (оплата услуг ЖКХ). Он же контролирует доли в нескольких IT- и сервисных компаниях, включая ТОО «ELTOP Soft» (программное обеспечение) и является конечным бенефициаром розничной сети Magnum Cash&Carry. В обшей сложности в периметр группы Kaspi.kz и ее акционеров входят десятки компаний из разных отраслей экономики.
Стремительный рост состояния Вячеслава Кима наметился в 2022 году. За три года его богатство выросло более чем в три раза с $2 млрд до $7,1 млрд. Этому, в том числе, способствовал выход Kaspi.kz в январе прошлого года на американскую биржу NASDAQ. За четыре года до этой сделки компания провела первичное размещение своих глобальных депозитарных расписок на Лондонской бирже. Тогда ее оценили в $6 млрд. В настоящее время рыночная капитализация Kaspi.kz составляет $13,5 млрд. Помимо Вячеслава Кима, ее ключевые акционеры Михаил Ломтадзе и фонды Baring Vostok (структура Baring Private Equity Global и его основателя Майкла Калви).
До 2018 года треть компании принадлежала племяннику Нурсултана Назарбаева Кайрату Сатыбалды. Перед IPO в Лондоне он вышел из состава учредителей, как считается, чтобы не привлекать внимание британских регуляторов и потенциальных инвесторов своей аффилированностью с президентом Казахстана. Эта сделка, по мнению журналиста Forbes Дэвида Докинза, могла носить мнимый характер, а доля Сатыблады была размыта между Ломтадзе и Кимом с условием ее «возврата по первому требованию».
В июле этого года под контроль Вячеслава Кима перешел еще один финансовый актив, связанный с семьей Нурсултана Назарбаева Jusan Bank, который после этого сменил вывеску на Alatau City Bank.
Этот банк ранее контролировался бывшим президентом Казахстана через его структуры Pioneer Capital и Jusan Technologies. После череды скандалов и смены собственников, актив в итоге оказался в портфеле Вячеслава Кима.
В июле 2024 года стало известно, что Jusan Technologies отказалась от претензий на казахстанские активы за компенсацию в размере $127 млн. Кроме того, около $8 млн получила компания QAZ42 за свой пакет акций в Jusan Technologies, за который ранее она заплатила $20 млн, став после этого владельцем доли стоимость в 10 раз больше. Последняя компания может быть связана с бывшим главой КНБ Каримом Масимовым.
Поместье в Суррее не единственный актив семьи Вячеслава Кима в Великобритании. В лондонском районе Мэйфейр Татьяне Ким принадлежат две квартиры стоимостью £25,7 млн. Первая квартира Татьяны Ким находится на третьем этаже здания по адресу Grosvenor Square, 20 — прямо над апартаментами ее однофамилицы Кристины Ким, дочери «кошелька Назарбаева» миллиардера Владимира Кима. Этот объект имеет схожую планировку: площадь около 500 м², три спальни, гостиная, кухня со столовой, четыре санузла. Эта покупка обошлась супруге совладельца Kaspi.kz почти в £20 млн. Вторая квартира поменьше, она расположена на пятом этаже того же дома и стоила «всего» £5,7 млн. В ней одна спальня, гостиная и два санузла.
Их соседи не только семья казахстанского бизнесмена Владимира Кима. Два самых дорогих пентхауса в этом доме по £50 млн купили экс-владелец российского «Уралкалия», владелец футбольного клуба «Монако» Дмитрий Рыболовлев и актриса Светлана Меткина (Литвак). Ее муж Мишель Литвак владеет несколькими портами на Таманском полуострове и в 2019 году получил российское гражданство. Отец Светланы Александр Меткин долгое время работал в аппарате российского правительства. В начале этого года против Мишеля Литвака Великобритания ввела персональные санкции.
Еще две квартиры выкупили дочь и бывшая жена Михаила Черного Стефания и Анна Черные. Черной, уроженец Ташкента, так же известен под кличкой «Миша-Крыша», бывший деловой партнер российского миллиардера Олега Дерипаски и бывший криминальный авторитет.
Источник: Telegram channel “Выход к морю”



